We Provide
Our specialized services cover all aspects of the Tensile Fabric Structures, which includes everything from feasibility study, front end engineering through to manufacturing facilitation and installation sequencing.
Projects on different sectors such as Retail, Leisure, Hospitality, Residential, Commercial, Entertainment, Institutional, Transportation and Sports Arena require these kind of specialised engineering services.
Schematic Design
We initial understand your requirement of the site conditions and give you some proposals for the client’s initial approval.



Detailed Design
Once the concept is approved, we can then give the GA drawings.




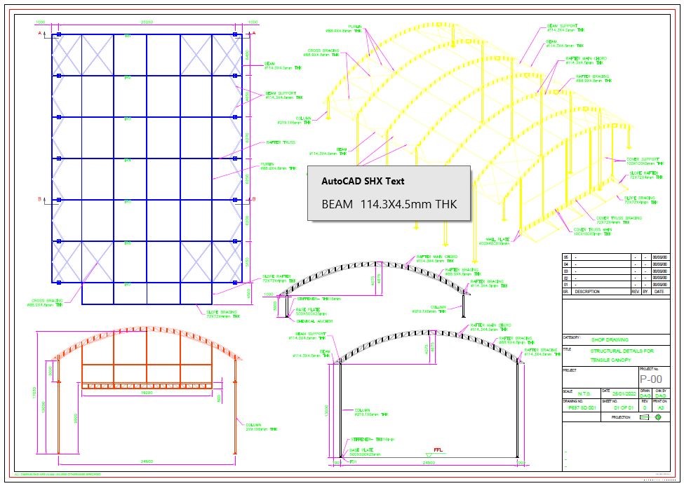
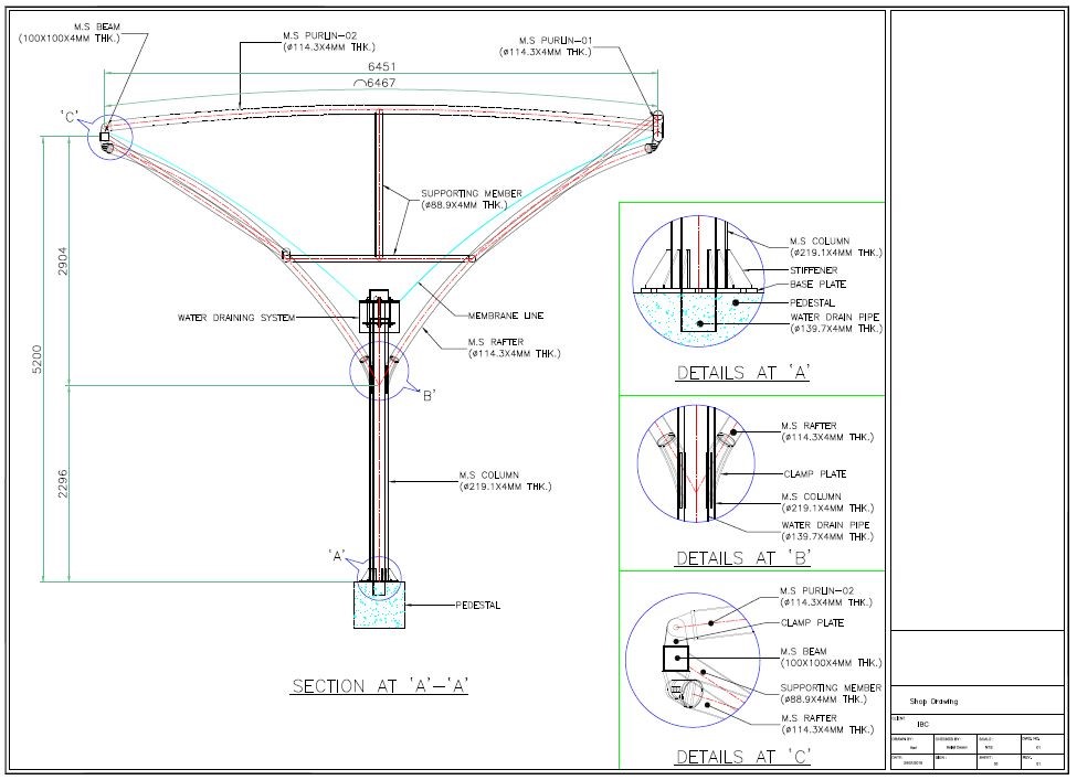
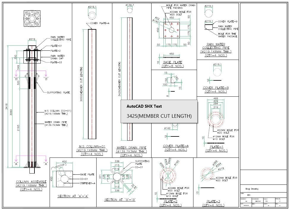
Fabric Analysis Report For Different Load Cases
Structural Steel Design
We design Our steel structures in Engineering softwares with all reports required.
Production Details
We support our clients with full fabrication drawings as required for production.










Fabric Patterning
We have software’s like IXcube and others to support our clients with patterning, which is then sent for production.





Fabric Welding
With a high-frequency machine and plotter in-house, we plot with high precision and do the welding of all types of PVC fabrics.
Project Execution & Supervision
-
We have 25 years of Service in Project Consultancy throughout the Middle East and India specializing in high-impact, time-sensitive projects critical to the clients.
-
We assist organizations in doing the right projects—those with strategic alignment that make the best use of your time, talent, and budget—and doing them right.
-
We can manage your project from initiation to completion. We work hand in hand if your project lacks momentum to get your project back on track.
-
We ensure your projects are completed within budget, scope, and time.
-
We have executed more than 500000 Sqm of an area in the Middle-east and India for different types of projects like car parking, atrium covering, swimming pools, stadium, etc.
Project Consultancy
Project scheduling and planning are simply the beginning. Most of the time and work of a project is during its execution. Therefore, execution in project management is critically important.
This is where we boast of our vast experience and excellence in the field of project execution spanning 25 years in the Middle East and India with pivotal projects under our wings.
Project monitoring and control are a significant part of this phase, as issues will always arise and require quick adjustments as the project progresses.
